3500 Powelton Ave, Unit C-309, Philadelphia, PA 19104
3500 Powelton Ave, Unit C-309, Philadelphia, PA 19104
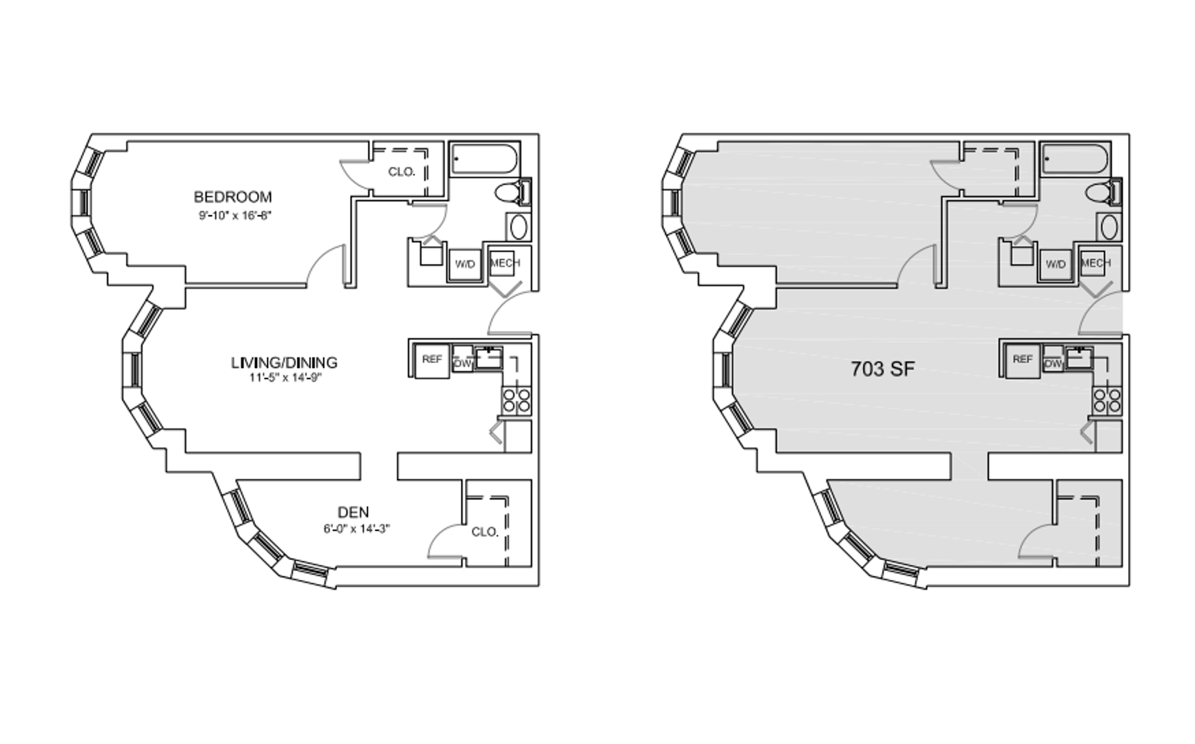
Newly Renovated 1Bed/ 1Bath with DEN at Carriage House!
Welcome to Carriage House, a newly renovated apartment community located in the heart of Philadelphia, PA. This one-bedroom, one-bathroom unit features keyless entry, washer/dryer in unit, vinyl flooring, and large windows that fill the space with natural light. Residents can enjoy the convenience of 24/7 live surveillance, controlled access, and 24/7 maintenance. The enclosed community courtyard with grills is perfect for outdoor gatherings. Just blocks away from Drexel and UPenn, Carriage House offers a prime location for students and professionals alike. Don't miss out on the opportunity to call this apartment your new home. Contact us today to schedule a tour!
Contact us:






































